A named space is a creative and meaningful way to create an enduring legacy. At Penn Dental Medicine, your gift will be associated with this historic moment for the School and will power the next generation of proud Penn dentists. Opportunities are available in following clinics within the School:
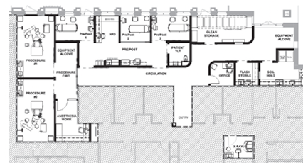
Penn Dental Medicine Sedation Center
Opening in 2026, the Sedation Center will be a purpose-built space designed to expand access to care by reducing wait times and removing barriers for patients with complex needs. The Center will support advanced sedation and surgical procedures through the use of state-of-the-art equipment, allowing clinicians to safely and effectively treat patients with significant medical and behavioral challenges. At the same time, the Center will serve as a world-class training environment, preparing future leaders in dentistry—both in the U.S. and internationally—with a strong emphasis on compassionate, patient-centered care.
Available Naming Opportunities |
Gift Level |
|---|---|
| Naming of the Sedation Center | $1,000,000 |
| Procedure Room | $100,000 |
| Nurses Station | $75,000 |
| Recovery Room | $50,000 |
| Patient Consultation Room | $50,000 |
| X-Ray Room | $25,000 |
| Director’s Office | $25,000 |
The Robert I. Schattner Clinic
The School’s 11,520-square-foot Main Clinic, which has been the hub of DMD clinical instruction and patient care since the Thomas Evans Building’s construction in 1915, has undergone a complete renovation for an improved student and patient experience.
Now the Robert I. Schattner Clinic, the space features new state-of-the-art equipment, 74 individual operatories designed to maximize privacy and comfort, new flooring and lighting, enhanced radiographic capabilities, and a redesign to optimize operational flow, including improved instrument distribution and collection. Adding a dramatic element to the space, two-story windows that mimic the building’s original 1915 windows line the north side of the clinic, bathing the space in natural light.
Available Naming Opportunities |
Gift Level |
|---|---|
| Patient Waiting Area | $250,000 |
| Clinic Window The clinic windows returned to their original, two-story, wide-paneled appearance. |
$50,000 |
| Clinical Director’s Office | $50,000 |
| Clinic Operatory | $25,000 |
The Ted and Barbara Lerner Pavilion
The Lerner Pavilion builds upon the unified Penn Dental Medicine campus achieved with the Robert Schattner Center. When the Schattner Center opened in 2002, becoming the School’s main entrance, it linked the Evans Building and Leon Levy Center for Oral Health Research. The Lerner Pavilion enhances this connection, further joining all three buildings that make up Penn Dental Medicine and facilitating interaction among faculty and staff within them.
The 2,100-square-foot Pavilion extends beyond the existing atrium of the Schattner Center and enclosed a portion of courtyard area behind it, creating a dynamic new space on two levels for public gatherings and interaction. The space is a central meeting and reception area for faculty, staff, patients, and visitors to the Penn Dental Medicine campus. The second floor patient waiting area improves way finding for patients being treated in the Schattner Clinic and Care Center for Persons with Disabilities, and improves the connection to the Leon Levy Center providing a straight line of access from the Evans Building through the Schattner Center to Levy on the first and second floors.
Available Naming Opportunities |
Gift Level |
|---|---|
| Levy Seminar Room (2nd Floor) | $100,000 |
| Large Conversation Area (1st or 2nd Floor) | $25,000 |
| Small Conversation Area (1st Floor, Commons) | $10,000 |
The Henry Schein Cares Clinic in Honor of Edward and Shirley Shils
The 100th anniversary of the School’s flagship structure, the Evans Building, launched a rigorous campus building upgrade program that aimed at enhancing the student and patient experiences. One of the first clinical spaces of the project was the new 55-chair Shils Clinic which created an accessible general restorative teaching clinic. Located on the first floor of the Evans Building, the Clinic features state-of-the-art equipment as well as the building’s original windows which line two sides the space creating a bright, welcoming environment for patients.
Available Naming Opportunities |
Gift Level |
|---|---|
| Waiting Area | $150,000 |
| Clinic Window | $50,000 |
| Clinic Operatory | $25,000 |
| X-Ray Room | $10,000 |
Contact
For more information on naming opportunities at the School, including information on opportunities in the Care Center for Persons with Disabilities, contact:
Maren Gaughan
Associate Dean for Leadership Giving
Office of Institutional Advancement
215-898-3542
gaughan@upenn.edu